A brand new district designed by BOB361 Architects / Neo-Ides / Bureau d'etude Lemaire / Genie Tec B...
BRUZZ tv "Het Huis van de Architect" episode 10, by Marjon Udo, 18-12-2019, (While video's playing, ...
The construction of Nieuw Zuid Social Housing has been finished. ...
BOB361's participation for "The Longest Bench" completed....
Luquain, A. (2018). "Renoveren in Parijs", Orteaux BOB361. A+ 274. Brussel, p. 16-18....
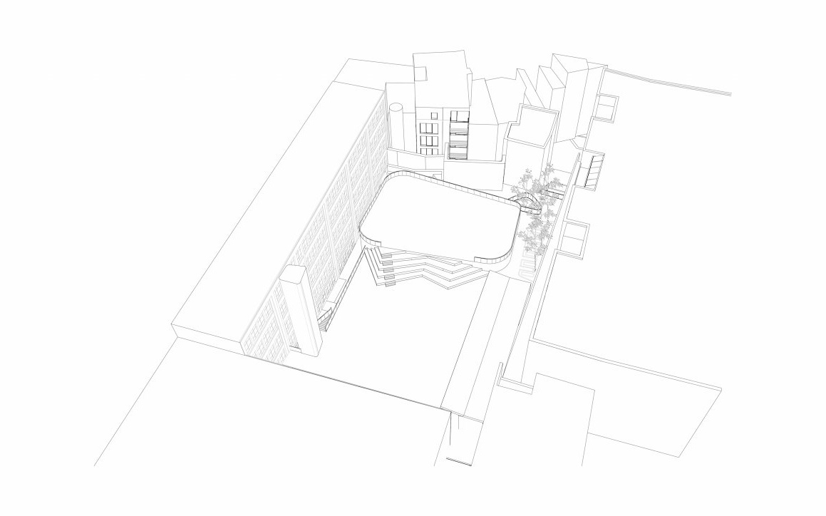
Reconversion of a former library site
2016
Underground sports infrastructure for the 'Maria-Boodschap Lyceum'.
Link: http://beexemplary.brussels/nl/laureaten.php