• MABO sports infrastructure

    Public Infrastructure

    MABO sports infrastructure, Brussels

  • MABO sports infrastructure

    Public Infrastructure

    MABO sports infrastructure, Brussels

  • MABO sports infrastructure

    Public Infrastructure

    MABO sports infrastructure, Brussels

  • MABO sports infrastructure

    Public Infrastructure

    MABO sports infrastructure, Brussels

  • MABO sports infrastructure

    Public Infrastructure

    MABO sports infrastructure, Brussels

  • MABO sports infrastructure

    Public Infrastructure

    MABO sports infrastructure, Brussels

  • MABO sports infrastructure

    Public Infrastructure

    MABO sports infrastructure, Brussels

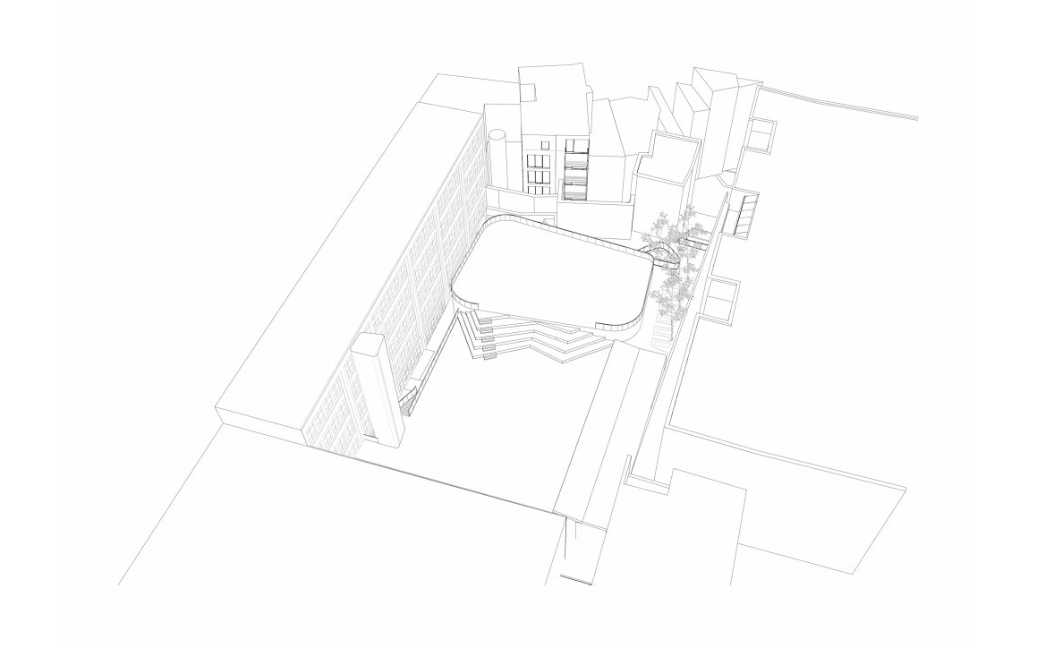
Underground sports infrastructure embedded in a playground

-

  • Location
  • Brussels
  • Size
  • 570 m2
  • Budget
  • -
  • Status
  • Working drawings
  • Type
  • Direct Order
  • Date
  • 2015-...
  • Client
  • Maria-Boodschap Lyceum
  • Team
  • Goedele Desmet
  • Ivo Vanhamme
  • Lotte De Swaef
  • External consultation
  • RCR studiebureau
  • BAS bvba
  • Daidalos Peutz