• Belle-Vue

    Renovation

    Belle-Vue, Brussels

  • Belle-Vue

    Renovation

    Belle-Vue, Brussels

  • Belle-Vue

    Renovation

    Belle-Vue, Brussels

  • Belle-Vue

    Renovation

    Belle-Vue, Brussels

  • Belle-Vue

    Renovation

    Belle-Vue, Brussels

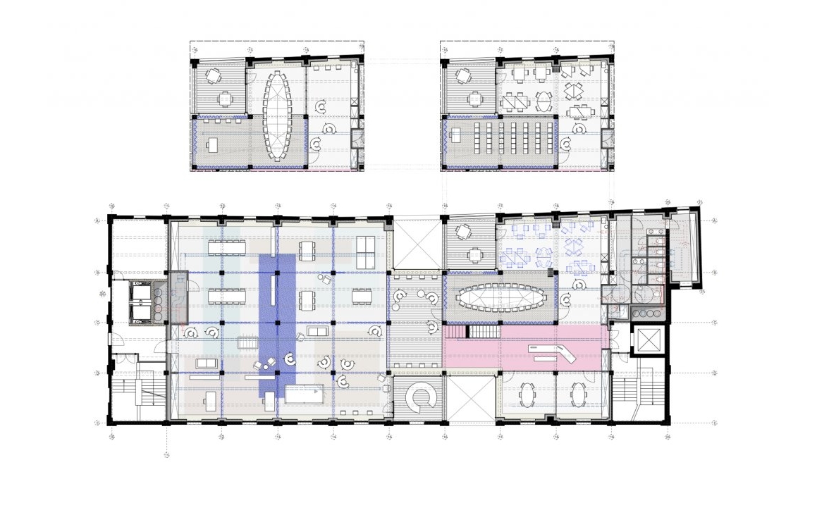
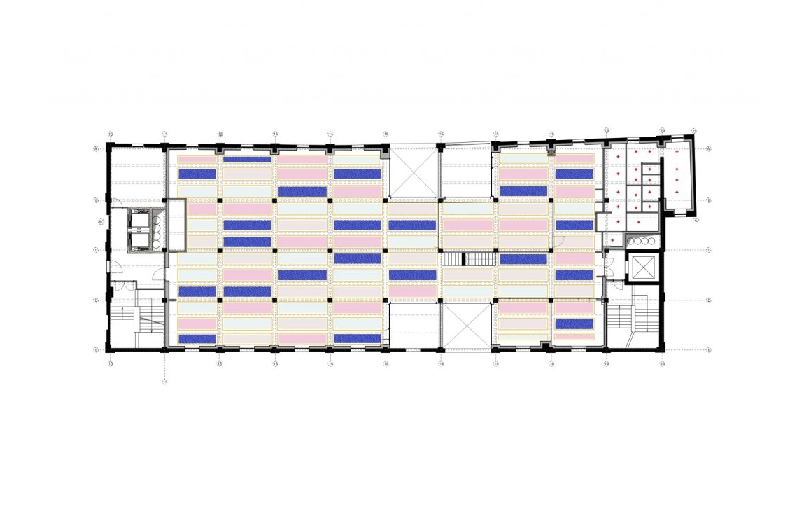
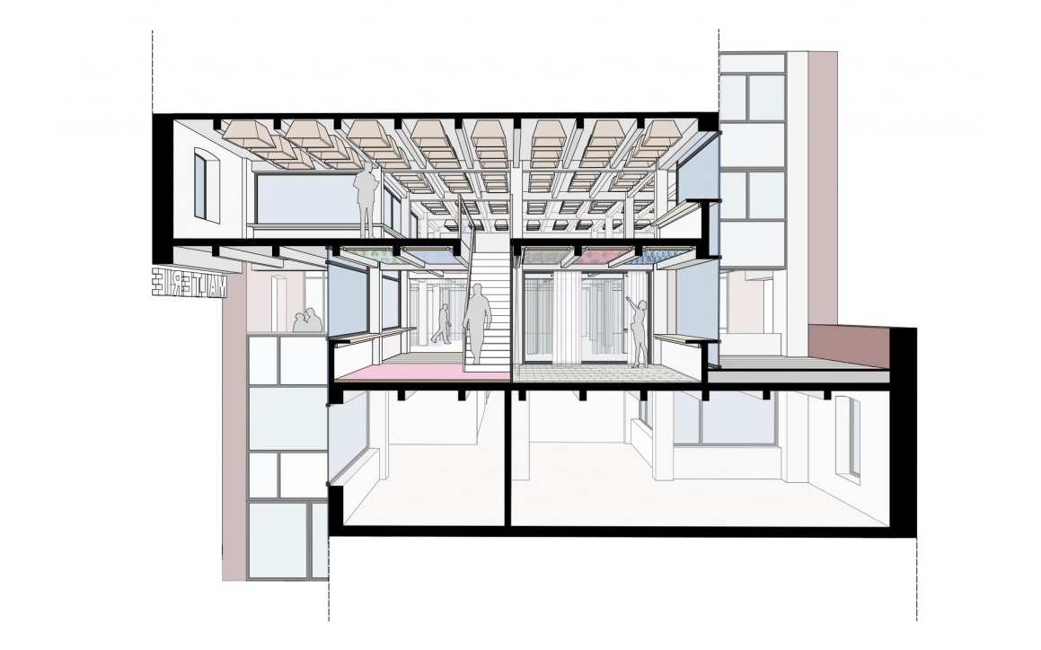
Renovation of the second floor of the former brewery Belle-Vue

  • Location
  • Brussels
  • Size
  • 570 m2
  • Budget
  • € 268.887,00
  • Status
  • Competition
  • Type
  • Competition
  • Date
  • 2018
  • Client
  • Cultuurnet Vlaanderen
  • Team
  • Goedele Desmet
  • Ivo Vanhamme
  • Nathalie Havelange
  • Andreu Vélez Guillén
  • Anne Pijl
  • External consultation