• Reflection

    Renovation

    Reflection, Hoeilaart

  • Reflection

    Renovation

    Reflection, Hoeilaart

Reflection of the surroundings

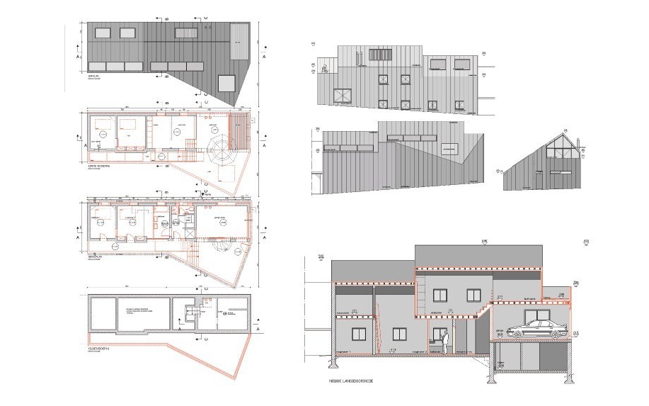
The main idea for the renovation of this house was its integration in the context (the rural surroundings as well as the ‘suburban climate’) and this without affecting the original building volume too much, however, the programme claimed a small extension at the side of the garden. The house was entirely covered by an oxidating copper cladding that reflects the poetical value of the intimate green surroundings.

  • Location
  • Hoeilaart
  • Size
  • 160 m2
  • Budget
  • € 124.000,00
  • Status
  • Completed
  • Type
  • Direct Order
  • Date
  • 2001
  • Client
  • Private
  • Team
  • Goedele Desmet
  • Ivo Vanhamme
  • Maarten Dekoninck
  • Jean-Michel Culas
  • External consultation