• Zoersel

    Public Infrastructure

    Zoersel, Zoersel

  • Zoersel

    Public Infrastructure

    Zoersel, Zoersel

  • Zoersel

    Public Infrastructure

    Zoersel, Zoersel

  • Zoersel

    Public Infrastructure

    Zoersel, Zoersel

  • Zoersel

    Public Infrastructure

    Zoersel, Zoersel

  • Zoersel

    Public Infrastructure

    Zoersel, Zoersel

Extension

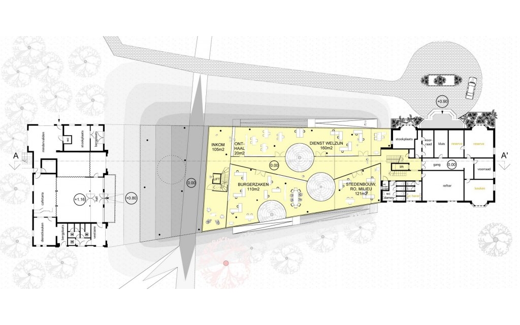
The layout of the extension is situated between the city hall and the carriage house to preserve the open space behind. We opt for a low horizontal building to keep the visual relation with the park intact. The castle con- tains the ceremonial functions, the new building the public services but both are connected with a central “red carpet”. The council room is located on the head of the building (as a periscoop). The existing trees are integrated inside the building within patios.

  • Location
  • Zoersel
  • Size
  • 1.284 m2
  • Budget
  • € 11.825.633,00
  • Status
  • Competition
  • Type
  • Competition
  • Date
  • 2003
  • Client
  • Gemeente Zoersel
  • Team
  • Goedele Desmet
  • Ivo Vanhamme
  • Jean-Michel Culas
  • External consultation