• Libelco

    Housing

    Libelco, Sint-Jans-Molenbeek

  • Libelco

    Housing

    Libelco, Sint-Jans-Molenbeek

  • Libelco

    Housing

    Libelco, Sint-Jans-Molenbeek

  • Libelco

    Housing

    Libelco, Sint-Jans-Molenbeek

  • Libelco

    Housing

    Libelco, Sint-Jans-Molenbeek

  • Libelco

    Housing

    Libelco, Sint-Jans-Molenbeek

  • Libelco

    Housing

    Libelco, Sint-Jans-Molenbeek

  • Libelco

    Housing

    Libelco, Sint-Jans-Molenbeek

  • Libelco

    Housing

    Libelco, Sint-Jans-Molenbeek

  • Libelco

    Housing

    Libelco, Sint-Jans-Molenbeek

  • Libelco

    Housing

    Libelco, Sint-Jans-Molenbeek

  • Libelco

    Housing

    Libelco, Sint-Jans-Molenbeek

  • Libelco

    Housing

    Libelco, Sint-Jans-Molenbeek

  • Libelco

    Housing

    Libelco, Sint-Jans-Molenbeek

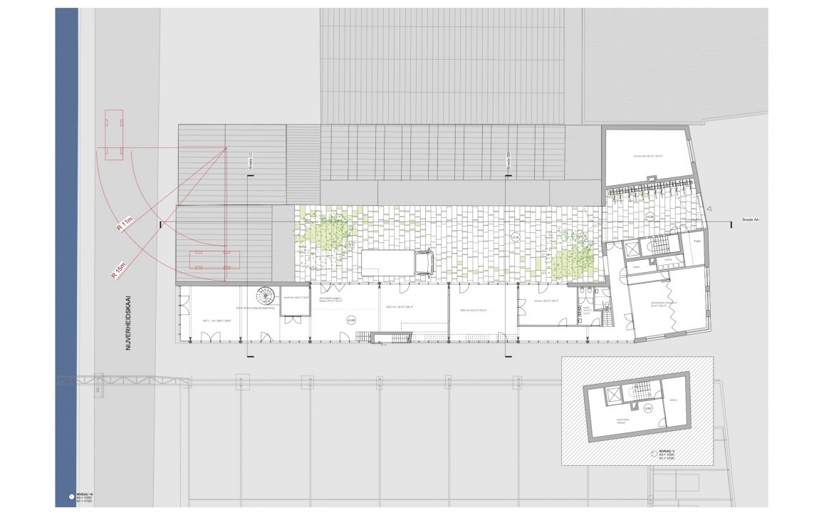
Reconversion of Nijverheidskaai 75-79 at Sint-Jans-Molenbeek with multi-purpose activity spaces, housing units and an private courtyard.

For this competition the new building is located on a long and narrow parcel next to the Libelco Hall near the canal in Brussels. The groundfloor has ateliers for carpentry, a bike repair shop and other social/productive activities. The long glass façade provides an interaction with the public space underneath the restored Libelco Hall. The activities taking place in the ateliers become visible as part of the social and public program of the urban redevelopment of the area. The private courtyard in the inside part of the parcel allows for easy deliveries and/or private outdoor activities. The terrace on top of the ateliers works as a private roofgarden for the inhabitants of the housing units on the different levels. Here a combination of studio's and multi-room apartements allow for a healthy social mix.

  • Location
  • Sint-Jans-Molenbeek
  • Size
  • 1.492 m2
  • Budget
  • € 3.479.993,00
  • Status
  • Competition
  • Type
  • Competition
  • Date
  • 2017
  • Client
  • Gemeentebestuur Sint-Jans-Molenbeek
  • Team
  • Goedele Desmet
  • Ivo Vanhamme
  • Hendrik Verlinden
  • Nathalie Havelange
  • w/ PT Architecten
  • External consultation
  • Daidalos Peutz
  • Util Struktuurstudies
  • MK Engineering