• Weyveld

    Housing

    Weyveld, Aalst

  • Weyveld

    Housing

    Weyveld, Aalst

  • Weyveld

    Housing

    Weyveld, Aalst

  • Weyveld

    Housing

    Weyveld, Aalst

  • Weyveld

    Housing

    Weyveld, Aalst

  • Weyveld

    Housing

    Weyveld, Aalst

  • Weyveld

    Housing

    Weyveld, Aalst

  • Weyveld

    Housing

    Weyveld, Aalst

  • Weyveld

    Housing

    Weyveld, Aalst

  • Weyveld

    Housing

    Weyveld, Aalst

  • Weyveld

    Housing

    Weyveld, Aalst

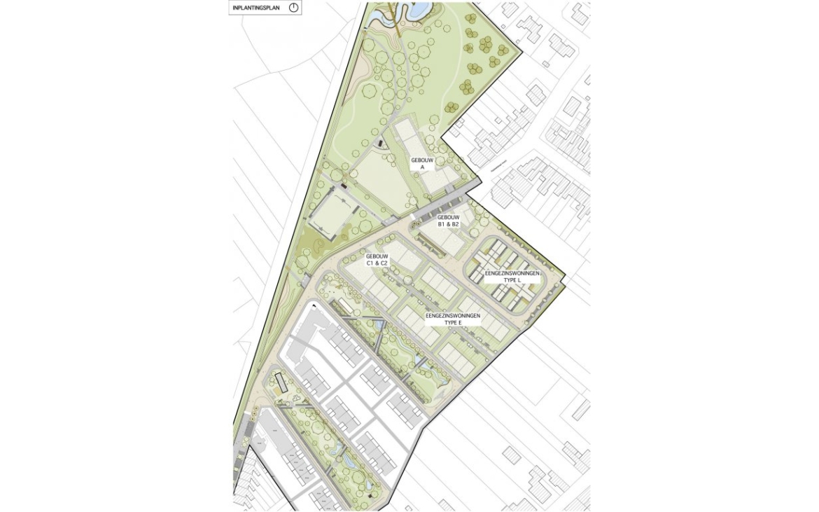
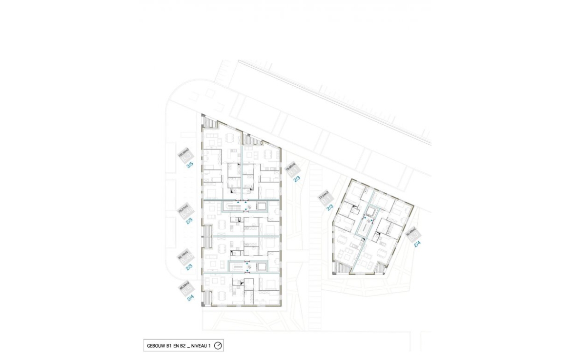
82 social apartments and 22 social houses

The combined open space infiltrates into the new built area through green vains. These vains are conceived as local public spaces and informal meeting areas for the inhabitants. They create light and air in the dense tissue and are integral and inseperable part of the qualitative living area. In order to meet the demanded density without loosing the required open space, several higher volumes are introduced. Like old mills, water towers and churches, they act as landmarks that determine the skyline of Hofstade, creating their own spatial context.

  • Location
  • Aalst
  • Size
  • 6.844 m2
  • Budget
  • € 13.600.000,00
  • Status
  • Working drawings
  • Type
  • Competition 1st Place
  • Date
  • 2010-...
  • Client
  • SHM Denderstreek
  • Team
  • Goedele Desmet
  • Ivo Vanhamme
  • Trui Maes
  • Pieter Van de Putte
  • Wesley Degreef
  • Celine Van Lamsweerde
  • Renée Verhulst
  • External consultation
  • Stabitec bvba
  • Moens Engineering
  • Topco
  • Studiebureau BVP